Aliuminio langų ir durų profilis
Aluprof MB-104 PASSIVE
Aluprof MB-104 PASSIVE langų ir durų sistema, užtikrinanti aukščiausią šilumos izoliacijos lygį. MB-104 Passive yra langų ir durų sistema su šilumine pertvara, užtikrinanti aukščiausią šilumos izoliacijos lygį ir atitinkanti visus reikalavimus, nustatytus pasyvioje konstrukcijoje naudojamiems elementams. Ši sistema puikiai tinka ir tuomet, kai projektuojamos aukštos energetinės klasės aliuminės lauko durys, reikalaujančios maksimalaus sandarumo bei atsparumo aplinkos poveikiui.
„Aluprof MB-104 PASSIVE“ sistema
- UW nuo 0,53 W/(m2K)
Šilumos izoliacija atidaromam langui. - C5/B5 klasė PN-EN 12210:2001
Atsparumas vėjo apkrovai. - AE 1800 klasė PN-EN 12208:2001
Atsparumas vandeniui. - 4 klasė PN-EN 12207:2001
Sandarumas.
MB-104 Passive yra langų ir durų sistema su šilumine pertvara, užtikrinanti aukščiausią šilumos izoliacijos lygį ir atitinkanti visus reikalavimus, nustatytus pasyvioje konstrukcijoje naudojamiems elementams.


Aluprof MB-104 PASSIVE aliuminio langų ir durų profilio sistema

Sistema naudojama išorinės architektūros kūrimo elementams gaminti, pvz., įvairių tipų langams, durims, prieškambariams ir erdvinėms konstrukcijoms, kurioms, be puikios šilumos izoliacijos, taip pat būdinga labai gera garso izoliacija, atsparumas vandeniui ir orui bei didelis konstrukcijos stiprumas.
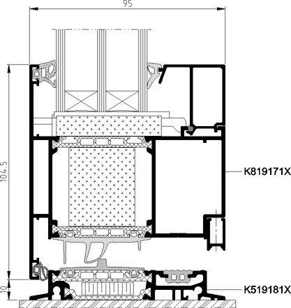
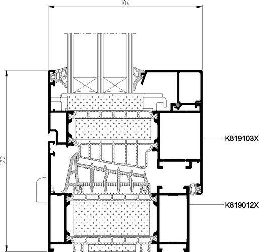
MB-104 Passive sistemos profilio konstrukcija, priklausomai nuo šilumos energijos taupymo reikalavimų, yra dviejų variantų: SI ir AERO.
Langų ir durų, pagamintų iš MB-104 Passive sistemos elementų, parametrai viršija dabartinius griežčiausių galiojančių taisyklių ir standartų reikalavimus, todėl MB-104 Passive sistema skirta efektyviai energiją vartojantiems ir pasyviems pastatams.
Aluprof MB-104 PASSIVE aliuminio profilis
Aluprof MB-104 PASSIVE aliuminio langų ir durų profilio privalumai
Langai sertifikuoti Darmštato Pasyvaus namo instituto
MB-104 Passive SI ir MB-104 Passive Aero.
Puikios šilumos izoliacijos savybės atidaromiems langams
UW nuo 0,53 W/(m2K) ir durims UD nuo 0,62 W/(m2K).
Standartus viršijančios sandarumo ir izoliacijos savybės.
Didelis, iki 81 mm, stiklinimo diapazonas.
Lauko durys gali būti tiek įstiklintos, tiek su dailylentėmis – puikiai tinka kaip įėjimo į modernų namą durys.
MB-104 Passive sistemos pagrindu taip pat galima gaminti labai estetiškas skydines duris, atitinkančias reikliausių vartotojų lūkesčius.
Turite klausimų?
Parašykite mums
Užsukite į mūsų saloną
Laukiame Jūsų
„Tikri langai” aliuminio profilių pardavimo padaliniuose Kaune ir kituose Lietuvos miestuose sužinosite visą specifinę informaciją apie konkrečią profilių sistemą ir kainas.
Jus aptarnaujantis specialistas mielai Jums patars, koks sprendimas geriausiai atitinka Jūsų poreikius.












