Aliuminio langų ir durų profilis
Aluprof MB-86 ST, SI, AERO
MB-86 ST, SI, AERO langų ir durų sistemos su šilumine pertvara
„Aluprof MB-86 ST, SI, AERO“ sistema
- UW nuo 0,72 P (m2K)
Šilumos izoliacija - 4 klasė
PN-EN 12207:2001
Sandarumas - E klasė 1500 Pa
PN-EN 12208:2001
Atsparumas vandeniui - C5 klasė
Atsparumas vėjo apkrovai
Naujoji MB-86 langų ir durų serija sukurta taip, kad užtikrintų išskirtines izoliacines savybes. Ji atitinka didėjančius teisės aktų ir bendrus rinkos reikalavimus, susijusius su geresne energiją taupančia naujų langų ir durų konstrukcija. Ši sistema puikiai tinka projektuojant modernias
aliumines lauko duris, kur reikalingas sandarumas, atsparumas oro sąlygoms ir šilumos izoliacija.


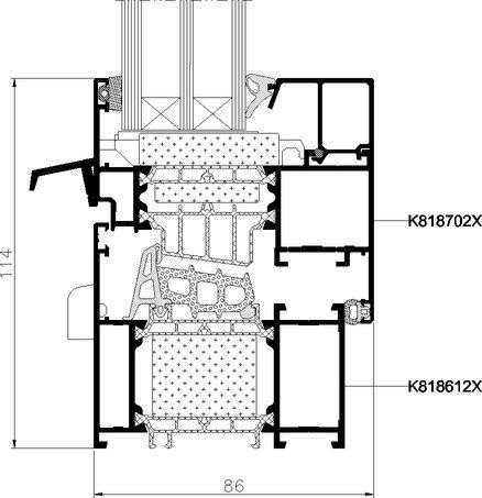
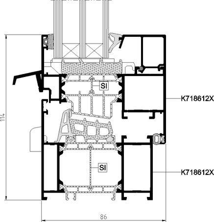
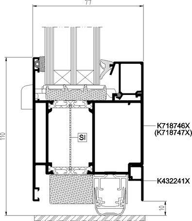
Aluprof MB-86 ST, SI, AERO aliuminio langų ir durų profilio sistema

Siūlomi trys profilių dizaino variantai - ST, SI ir AERO. Tai pirmoji aliuminio sistema, kurioje naudojamas silikatinis aerogelis - nanoporinė medžiaga, turinti labai didelį laisvos tuštumos tūrį, palyginant su įprastomis kietomis medžiagomis. Didelis porų tūris, mažas kietųjų dalelių kiekis ir vingiuoto nuotėkio kelio amorfinė struktūra sąlygoja žemos šilumos laidumo vertes. Todėl sistema pasižymi pramonėje pirmaujančiomis šiluminėmis savybėmis. Be to, ji pasižymi išskirtiniu profilių inercijos greičiu, kuris leidžia padidinti langų dydį ir svorį.
Savybės ir privalumai:
Naujos konfigūracijos ypač storos šiluminės pertvaros.
Daugiakomponentė centrinė tarpinė.
Stiklinimo karoliukai su papildoma sandarinimo galimybe.
Įstiklinimas iki 67,5 mm, leidžiantis montuoti visų tipų dviejų kamerų stiklinimą, triukšmui nepralaidžius ir saugus stiklo paketus su apsauga nuo įsilaužimo.
Dideli stiklai be vielos tinklo.
Tinka įvairiai techninei įrangai, įskaitant paslėptus vyrius.
Vandens išleidimas galimas tiek tradicinis, tiek paslėptas variantas.
Labai efektyvus energijos vartojimas nuo 0,57 W/m2K.
Švarios ir aštrios siauros, ekstruzinio aliuminio rėmo linijos.
Platus apdailos asortimentas.
Aluprof MB-86 ST, SI, AERO aliuminio profilis
Aluprof MB-86 ST, SI, AERO aliuminio langų ir durų profilio funkcinės savybės
Oro pralaidumas
4 klasė, EN 12207:2001
Atsparumas vandeniui
E klasė 1500 Pa, EN 12208:2001
Šilumos izoliacijos langas (Uf)
MB-86 ST nuo 1,39 W/(m2K)
MB-86 SI nuo 0,92 W/(m2K)
MB-86 AERO nuo 0,57 W/(m2K)
Atsparumas vėjo apkrovai
C5 klasė (2000 Pa) EN 12211:2001; EN 12210:2001
Turite klausimų?
Parašykite mums
Užsukite į mūsų saloną
Laukiame Jūsų
„Tikri langai” aliuminio profilių pardavimo padaliniuose Kaune ir kituose Lietuvos miestuose sužinosite visą specifinę informaciją apie konkrečią profilių sistemą ir kainas.
Jus aptarnaujantis specialistas mielai Jums patars, koks sprendimas geriausiai atitinka Jūsų poreikius.













